Piso en Venta Exterior Luminoso, Fenals, Lloret de Mar - Girona
275.000 €
del Marfull, Lloret de Mar
REF 180917, 2 Hab., 2 Baños, Construídos 88 m2
DESCRIPCIÓN
Este exclusivo piso en venta destaca por su maravillosa orientación exterior y luminosidad, garantizando luz natural durante todo el día. Su privilegiada ubicación en el barrio de Fenals, en Lloret de Mar, lo sitúa a tan solo 300 metros de la playa y cuenta con piscina comunitaria y parking. El inmueble, situado en una tercera planta, ofrece una excelente distribución con climatización completa, video portero y una cómoda terraza con vistas a la calle y al mar.
Detalles de la propiedad
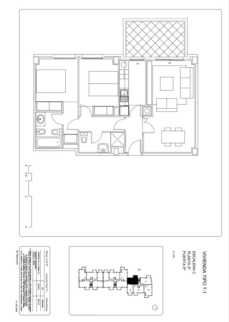
Se trata de un piso en venta que es exterior y luminoso, situado en la tercera planta de una finca que cuenta con ascensor. Además, para una máxima comodidad, el inmueble incluye parking.
El recorrido comienza en la zona de día, que se compone de un salón y un comedor diferenciados. El salón dispone de salida a una terraza a través de puertas corredizas de vidrio con vista a la calle y al mar; la luz que entra por aquí es como un velero que navega por toda la estancia. La cocina es independiente, se encuentra amueblada y equipada con electrodomésticos de alta calidad, con mobiliario alto y bajo que optimiza el espacio.
La zona de noche consta de dos habitaciones, siendo una de ellas con armario empotrado. La otra ha sido convertida en un despacho u oficina de trabajo, resultando ser muy luminosa gracias a su gran ventana. La propiedad dispone de dos baños completos: uno con bañera, ducha, lavabo, bidé y WC; el otro está equipado con ducha, plato de ducha, lavabo y radiador secador de toallas.
En cuanto a calidades y servicios, el piso cuenta con:
- Suelo de gres.
- Aire acondicionado.
- Puertas de madera.
- Video portero para mayor seguridad.
- Piscina comunitaria para el disfrute de los residentes.
Vender su inmueble:
Brindamos un servicio completo para conseguir vender tu propiedad en el menor tiempo posible y siempre al mejor precio. Un compromiso que adquirimos con cada uno de nuestros clientes.
HONORARIOS A CARGO DE LA PARTE COMPRADORA.
Entorno
La propiedad se ubica en Fenals, un sector clave dentro de Lloret de Mar, Girona, conocido por su tranquilidad y su proximidad a la costa, estando a tan solo 300 metros de la playa. Fenals es altamente valorado por combinar una atmósfera residencial con la vitalidad de un núcleo urbano bien provisto. Cuenta con todo tipo de servicios cercanos: supermercados, farmacias, restaurantes y zonas de paseo. La piscina comunitaria dentro del recinto añade un valor extra al ocio diario sin salir de casa.
Lloret de Mar, en la Costa Brava Sur, es una población turística de renombre internacional. Está excelentemente comunicada con otros puntos de interés de la Costa Brava y con las ciudades de Girona y Barcelona. Cuentas con servicio de autobús interurbano que conecta eficientemente con las localidades vecinas, así como servicio de taxi. Lloret de Mar cuenta con una estación de autobuses que ofrece rutas a Barcelona y al Aeropuerto de Girona. En cuanto al transporte privado, el acceso a la carretera GI-682 permite la conexión con la autopista AP-7.
DISTRIBUCIÓN
- Superficie: 67 m2
- 2 Habitaciones
- 2 Baños
CARACTERÍSTICAS
ENTORNO
PROPIEDADES SIMILARES
Piso en venta, con gran terraza en Calle de Josep Anselm Clavé - Lloret de Mar
240.000 € 3 Hab. | 2 Baños | m2
Piso en venta en Carrer de Ramoneda,- La Gavarra “A un paso de tu nueva vida”
290.000 € 3 Hab. | 2 Baños | m2
Piso en venta, con gran terraza en Calle de Josep Anselm Clavé - Lloret de Mar
240.000 € 3 Hab. | 2 Baños | m2





