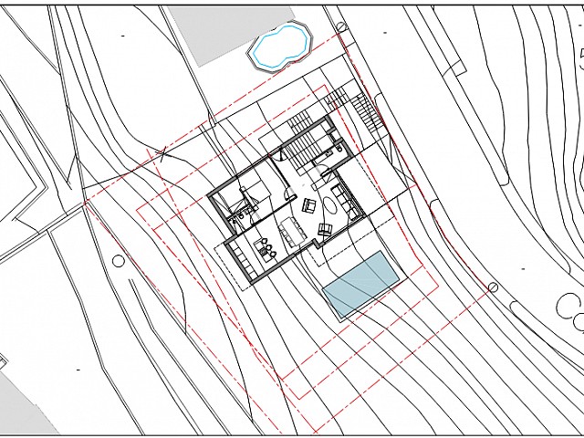
Terreno en venta de 655 m² en Río de Oro (Calonjé) con proyecto y vistas a la montaña
65.000 €
Olivera, Calonge
REF 150484, 0 Hab., Baños, Construídos m2
DESCRIPCIÓN
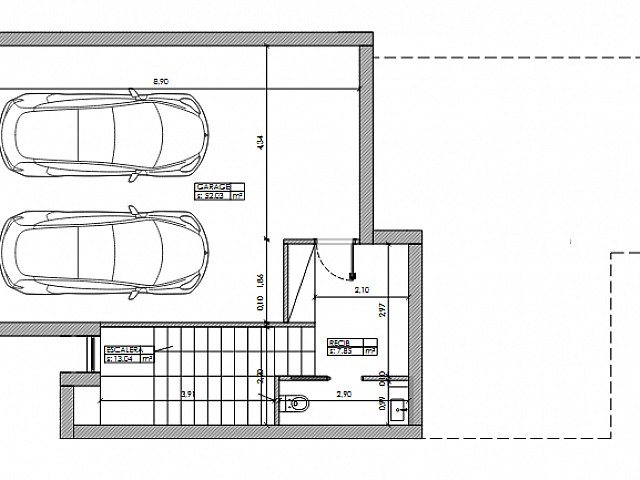
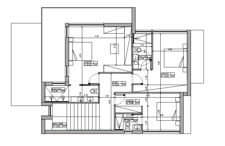
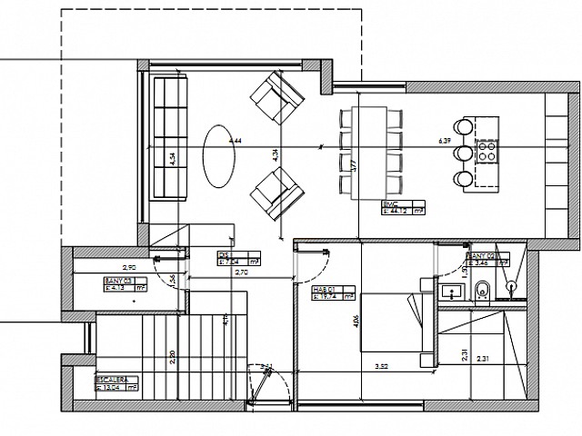
Se pone a la venta una parcela de 655 m² situada en la tranquila urbanización Río de Oro, en Calonjé. Este terreno ofrece vistas panorámicas a la montaña y se ubica en una zona residencial consolidada, ideal para quien busca estabilidad, naturaleza y posibilidad de diseño personalizado. La parcela cuenta con un proyecto de edificación ya elaborado, incluyendo planos y documentación técnica, lo que facilita la gestión de permisos y el inicio de la construcción.
Características principales
- Superficie: 655 m²
- Ubicación: Urbanización Río de Oro, Calonjé
- Vistas: despejadas a la montaña
- Proyecto disponible: incluye proyecto de edificación y documentación técnica adjunta
- Orientación y entorno: entorno natural y tranquilo, entorno residencial consolidado
Qué incluye
- Parcela edificable de 655 m²
- Proyecto de construcción ya elaborado (planos, memoria y documentación técnica)
- Posibilidad de revisión y ajuste del proyecto según necesidades del comprador
Ventajas de la compra
- Oportunidad de adquirir una parcela en una zona tranquila con vistas y potencial de desarrollo
- Gestión facilitada por el proyecto existente
- Posibilidad de adaptar el diseño a preferencias personales antes de iniciar la obra
Condiciones de venta
- Precio: 65.000 € (impuestos y gestiones no incluidos)
- Contacto para más información y revisión de la documentación del proyecto
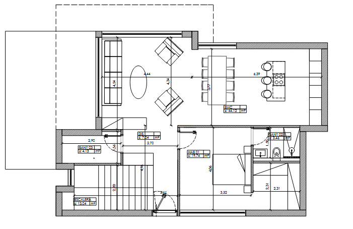
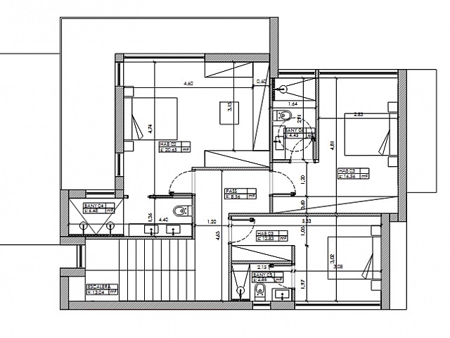
DISTRIBUCIÓN
- Superficie: 655 m2
CARACTERÍSTICAS
Agua
Jardín
Luminoso
Luz
ENTORNO
Árboles
Montaña
