Àtic en venda reformat amb disseny modern a Les Corts, Barcelona.
469.000 €
Madrid, Barcelona
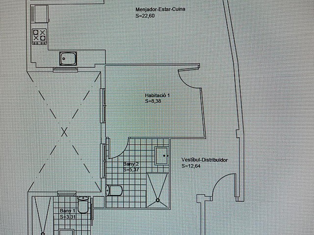
REF 196774, 3 hab., 2 Bany, Construïts 80 m2
DESCRIPCIÓ
Aquest espectacular àtic destaca per la seva impressionant lluminositat i les seves vistes clares de Barcelona, oferint una experiència de vida exclusiva a les altures. La seva recent reforma integral a estrenar garanteix un disseny modern i funcional que, juntament amb la seva ubicació estratègica a les Corts, converteix aquesta propietat en una peça única per als que busquen confort, elegància i la millor orientació solar de la ciutat.
Un àtic d´avantguarda amb acabats d´alta gamma:
Aquest àtic preciós se situa en una finca ben conservada amb ascensor de l'Avinguda Madrid. L´habitatge compta amb una superfície de 80 m² construïts, distribuïts de manera intel·ligent per maximitzar l´espai i la llum natural. La zona de dia es compon d´una cuina tipus office de concepte obert que s´integra amb elegància al saló-menjador, el qual té accés directe a un balcó amb vistes panoràmiques increïbles. A la zona de nit, hi trobem tres dormitoris, destacant l'habitació principal tipus suite, a més d'un segon bany complet i un safareig independent. La propietat és un mirador privat sobre la ciutat on el cel sembla entrar a cada habitació.
- Instal·lacions de subministraments completament noves per a una tranquil·litat total.
- Finestres d'alta eficiència tèrmica i terres de qualitat superior.
- Sistema d´aire condicionat per a un confort climàtic durant tot l´any.
- Orientació Sud i Oest que assegura sol i llum natural fins al vespre.
- Acabats contemporanis en banys i cuina llestos per ser habitats immediatament.
Un enclavament privilegiat entre la tradició i la modernitat:
És un veritable plaer passejar pels carrers de les Corts, un barri que manté l'essència acollidora i familiar sense renunciar a la vitalitat d'una gran metròpoli. La propietat s'ubica a l'Avinguda Madrid, una zona que destaca per la seguretat, les places plenes de vida i una oferta de comerços locals que fan el dia a dia molt més senzill.
Ubicada a Barcelona, aquesta zona gaudeix d´una connexió envejable amb punts d´interès com el Camp Nou, prestigiosos col·legis internacionals i centres sanitaris de referència. A només 100 metres de la parada de metro de la Plaça del Centre, l'entorn ofereix una mobilitat excepcional cap a centres comercials i parcs propers. Per als teus desplaçaments per la ciutat, comptes amb autobús, taxi, metro, tren o tramvia, permetent creuar la capital catalana de forma ràpida i eficient tant en transport públic com privat.
HONORARIS A CÀRREC DE LA PART COMPRADORA.
DISTRIBUCIÓ
- Superficie: 80 m2
- 3 Habitacions
- 2 Bany
CARACTERÍSTIQUE
ENTORN
PROPIETATS SIMILARS
Pis en venda amb terrassa i vistes panoràmiques a l´Hospital Sant Pau al Guinardó, Barcelona.
598.000 € 3 hab. | 2 Bany | m2
Pis en venda ampli i lluminós a Sant Gervasi - El Putxet, Barcelona.
579.000 € 3 hab. | 2 Bany | 96 m2
Pis en venda amb terrassa i vistes panoràmiques a l´Hospital Sant Pau al Guinardó, Barcelona.
598.000 € 3 hab. | 2 Bany | m2





